Advertisement
Advertisement
  • Name CAD / DXF Viewer
  • Category Utilities & tools
  • Available on PC, Mobile, Surface Hub, HoloLens
  • OS Windows 10 version 17763.0 or higher
  • Languages English (United States)

Efficient CAD/DXF Viewing Made Simple on Windows

If you're often working with or reviewing CAD or DXF files, finding a reliable and user-friendly viewer can be a game-changer. The CAD / DXF Viewer for Windows, developed by Mia Sarah, promises to streamline your workflow with a straightforward yet powerful tool. Let's delve into what makes this application stand out and whether it deserves a spot on your desktop.

Basic Information and Core Highlights

This application is designed as a lightweight and efficient viewer for CAD and DXF files, emphasizing ease of use combined with essential functionalities. Developed by Mia Sarah, the tool is tailored for professionals and hobbyists alike who need quick access to CAD drawings without the fuss of complex software.

  • Main Features:
    • Quick file rendering with high accuracy
    • User-friendly zooming, panning, and measurement tools
    • Support for multiple CAD formats, mainly DWG and DXF
    • Minimalist interface focused on clarity and speed
  • Target Audience: Engineers, architects, designers, students, and anyone who requires a dependable CAD file viewer without advanced editing capabilities.

A Fresh Take on Viewing CAD Files: An Introduction

Imagine diving into a project's intricate blueprint without being overwhelmed by clutter or lag—that's precisely what the CAD / DXF Viewer aims to deliver. Whether you're reviewing technical drawings on a busy construction site or casually exploring design drafts at home, this app positions itself as your trusty digital sketchbook. Its intuitive interface and rapid performance make it feel more like a friendly assistant than a heavyweight software.

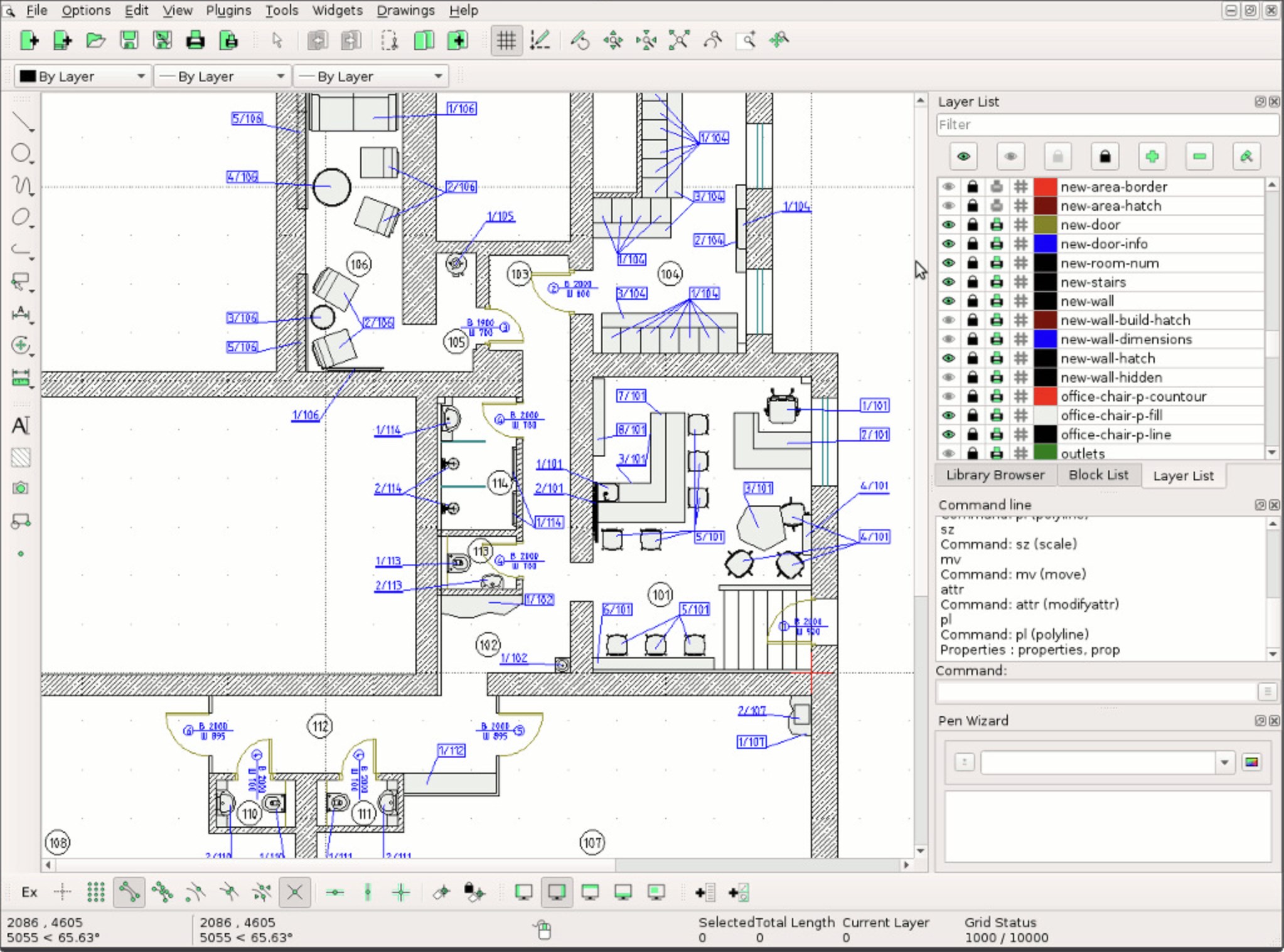
Core Functionality: Clarity in Every Detail

Seamless File Compatibility and High-Fidelity Rendering

The standout feature of this viewer is its ability to render CAD files with impressive clarity. It supports DWG and DXF formats—two of the most widely used in the industry—ensuring that your drawings appear exactly as intended. Loading files is brisk, almost instantaneous, giving you more time to analyze details rather than waiting around. This high-fidelity rendering preserves all measurements and layer details, which is crucial when verifying complex designs.

Intuitive Navigation and Measurement Tools

One of the app's most delightful aspects is its smooth navigation. Imagine zooming and panning as easily as moving a map with your fingertips—fluid, precise, and responsive. Plus, built-in measurement features allow you to quickly determine distances and angles within technical drawings, streamlining your review process. These tools are straightforward to operate, even for users new to CAD environments, making technical review less intimidating.

User Interface: Simplicity Meets Functionality

The interface design appears thoughtfully minimalistic—nothing detracts from the drawing itself. Icons and menus are clean and straightforward, reducing cognitive load. The layout is logical: access your files with a click, navigate with mouse gestures, and measure with dedicated tools. The application performs smoothly on typical Windows setups, with no noticeable lag or crashes, contributing to a relaxed and focused reviewing experience.

Unique Advantages and How It Differs

Compared to other lightweight CAD viewers, this app's notable edge is its focus on clarity and speed without sacrificing key features. While many free viewers can sometimes feel sluggish or cluttered with unnecessary options, Mia Sarah's creation feels like a refined, purpose-built tool. Its support for multiple formats combined with fast rendering sets it apart. Additionally, its lightweight footprint means it won't bog down your system, making it an ideal companion for quick checks or on-the-go reviews.

Final Verdict: To Download or Not?

All in all, the CAD / DXF Viewer for Windows earns a solid recommendation. It's a reliable, user-centric tool perfect for anyone needing quick access to CAD files without the complexity of full CAD software. For professionals who review drawings frequently or students mastering design fundamentals, this application offers a clean, efficient experience. Of course, it does not replace full-feature CAD programs, but for viewing tasks, it's an excellent choice.

Our suggestion is to give it a try, especially if you value speed and simplicity. It's like having a clear window into your drawings—nothing more, nothing less, but exactly what you need for efficient review sessions. Whether for professional work or educational purposes, this viewer could become your new go-to app for CAD file inspection.

Pros

User-Friendly Interface

The app offers an intuitive layout that makes navigating CAD and DXF files simple for users of all skill levels.

Fast File Rendering

It loads large CAD files quickly, significantly reducing wait times during viewing.

Supports Multiple File Formats

Beyond CAD and DXF, it supports common formats like DWG, enhancing versatility.

Zoom and Pan Functions

Smooth zooming and panning capabilities allow detailed inspection of drawings.

Free to Download and Use

No cost barrier for basic viewing, suitable for casual users and professionals alike.

Cons

Limited Editing Features (impact: Medium)

Currently, it only supports viewing; editing capabilities are missing, which might frustrate advanced users.

No Annotation Tools (impact: Low)

Users cannot add notes or markups directly on the files, limiting collaboration.

Occasional Crashes with Very Large Files (impact: Medium)

High-resolution or complex CAD files may cause the app to freeze or crash occasionally, but restarting usually resolves this.

Limited Platform Compatibility (impact: Low)

Currently available only on Windows, reducing accessibility for Mac or mobile users; future version support is expected.

Basic Visualization Only (impact: Low)

Lacks advanced features like layer control or measurement tools, which could improve detailed analysis; official updates may introduce these features later.

Advertisement

Frequently Asked Questions

How do I open and view CAD, DXF, or DWG files in the app?

Launch the app, tap 'Open,' and select your CAD or DXF files from your device or cloud storage to view and edit.

Can I convert my CAD or DXF files to other formats like PDF or PNG?

Yes, tap 'Export' or 'Convert,' choose your desired format (PDF, JPG, PNG, BMP), then select your files to convert.

How do I edit CAD or DXF files within the app?

Open the file, then use the provided editing tools in the app's editing mode to modify the design as needed.

What is the difference between the free and paid versions of the app?

The free version offers basic viewing and conversion features, while premium unlocks advanced editing and additional export formats. Check Settings > Account > Subscription for details.

How do I upgrade to a paid plan or subscribe?

Go to Settings > Account > Subscription, select your preferred plan, and follow the prompts to subscribe via your payment methods.

Is there a way to troubleshoot file loading or conversion issues?

Ensure your files are supported formats and not corrupted. Restart the app or try re-importing the files. Contact support if problem persists.

Which industries can benefit from this CAD/DXF viewer app?

It's suitable for construction, machinery, home decoration, engineering, and other industries needing file visualization and conversion.

Are there any limitations to file size or number of files I can open?

Limitations depend on your device memory; large files may require more processing time. Upgrading may enhance performance for bigger files.

How can I customize output settings like resolution or color options when exporting files?

After selecting export, adjust resolution and color options in the export settings menu before saving your files.

What should I do if the app crashes or freezes during use?

Try restarting the app, updating to the latest version, or reinstalling. Contact support if issues continue for further assistance.

Similar to This App

Reg Organizer

Reg Organizer

for Windows
5
My-Technician

My-Technician

for Windows
5
Human Typer

Human Typer

for Windows
5
CAD Design Software

CAD Design Software

for Windows
5
STL 3D Viewer Pro

STL 3D Viewer Pro

for Windows
5
Transparent Taskbar·

Transparent Taskbar·

for Windows
4.9
Weather Radar Pro.

Weather Radar Pro.

for Windows
4.9
EPUB+ Reader

EPUB+ Reader

for Windows
4.9
OMEN Gaming Hub

OMEN Gaming Hub

for Windows
4.9
Node.js/JavaScript Runner

Node.js/JavaScript Runner

for Windows
4.9
Torrent Downloader+

Torrent Downloader+

for Windows
4.9
IPYNB Editor - Jupyter Notebook Editor

IPYNB Editor - Jupyter Notebook Editor

for Windows
4.9

Hot Apps

Teleprompter Pro`

Teleprompter Pro`

for Windows
5
Reg Organizer

Reg Organizer

for Windows
5
Fred TV

Fred TV

for Windows
5
Embird Embroidery Software

Embird Embroidery Software

for Windows
5
Blooming Dimensions

Blooming Dimensions

for Windows
5
kenoxis driver updater

kenoxis driver updater

for Windows
5
Signal Private Messenger

Signal Private Messenger

for Windows
5
Red Dead Redemption (PC)

Red Dead Redemption (PC)

for Windows
5
Earth 3D Maps & Street View

Earth 3D Maps & Street View

for Windows
5
Tales of the Teenage Mutant Ninja Turtles Theme

Tales of the Teenage Mutant Ninja Turtles Theme

for Windows
5
Advertisement